Wooden Display Panel
Home My Arcade Favorites Tech Info

 

Wooden Display Panel Speaker Replacement - Dot Matrix Display

Safety tip: Be sure to disconnect the power to the game before performing any work!

In order to replace the speakers the display panel must be removed from the game; you'll need to disconnect a few cables to do this. Before disconnecting any cable it's always a good idea to mark its position so the cable can be replaced properly. Make a mark on the pin 1 end of the connector and socket, and label the connector with the mating socket number.

Hint: In the sections below you'll need to find the center of a square. It's very easy to do this by drawing diagonal lines from each corner of the square to the opposite corner using a straight edge and a pencil. The point where the two lines intersect to form an "X" is the center of the square.

Safety tip: Wear eye protection when using power tools! A dust mask will come in handy for the operations that generate lots of dust.

Remove the Display Panel

Remove the translite panel assembly and set it in a safe location. Lift the display panel upward to free it from the upper mounting brackets and set the panel face down on a towel or other padding laid on the playfield glass.

Follow the black and black-yellow wires from the left speaker into the back box to identify the specific connector on the sound board, and then remove that connector from the board. On pre-DCS games the speaker wiring harness will also have a single contact in-line connector that joins the display panel speaker wiring harness to the cabinet speaker wiring harness; you'll need to disconnect this connector as well. Now you can unravel the display panel speaker wiring harness from the back box wiring harnesses and cable clamps.

Remove the power and data cables from the rear of the dot matrix display; don't forget to mark the pin 1 position of the power and data cables first! If there is a feature lamp board on the display panel (used on Addams Family, Indiana Jones, etc.) you'll also need to disconnect the associated cable from that board.

Remove the nut from the threaded stud on the left inside bottom corner of the back box, and then remove the green-yellow ground wire leading from the display panel. Now you can remove the display panel from the game.

Disassemble the Display Panel

Set the display panel on a padded work surface. Cut the black and black-yellow wires from the speaker wiring harness where they attach to the left speaker; you can discard this harness, as we'll be replacing it with a new one. Also cut the two wires (black and black-yellow) that run from the left speaker to the right speaker. The black wire at the right speaker attaches to a solder lug; cut the wire at the lug.

Remove Dot Matrix Display, Speakers, and Feature Lamp Board

If there is a feature lamp board mounted to the rear of the display panel (used on Addams Family, Indiana Jones, etc.) remove the mounting screws and set the lamp board aside.

Remove the four 5/16 inch nuts that mount the dot matrix display to its mounting studs. Remove the four flat washers and the insulating paper, and then lift the display straight off its mounting studs. Store the display face down on a towel or other padded material. Remove the four black plastic spacers from the display mounting studs so you don't lose them. Set this hardware aside for later re-use.

Remove the 1/4 inch hex head screw that mounts the solder lug next to the right speaker and the 1/4 inch hex head screw that mounts the small capacitor next to the speaker. Now you can remove the four screws that mount each speaker to the display panel, and then remove each speaker. The left speaker will have a green-yellow ground wire fastened under the upper mounting screw closest to the dot matrix display; save that for later re-installation. Don't throw the left (5-1/4 inch) speaker away yet; you may need to use it while fabricating a spacer for the new speakers. Keep the speaker mounting screws, too; you might be able to re-use them.

Remove Mounting Hardware

Remove the two screws that mount the two J-shaped hooks used to mount the top of the display panel to the rails inside the back box, and set the screws and hooks aside. Remove the four screws that mount the plastic U-channel to the top of the display panel, and set the screws and U-channel aside. Note that the inner two screws have small cable clamps on them; don't lose the clamps.

*PICTURES OF DISASSEMBLY?*

Remove Screened Plastic Panel

Now comes the tricky part: removing the screened plastic panel from the front of the wooden display panel. The plastic panel is fastened to the wooden panel by double-sided foam tape that usually has lost much of its stickiness, but you may have to gently pry the plastic panel to peel it away from the wooden panel. Do not use any kind of sharp object such as a screwdriver, putty knife, or scraper; pry only with your fingers! Don't use a heat gun on the plastic panel, as it may deform the panel.

If you start at one corner and maintain gentle pressure the adhesive should break free; some times quite easily, and some times it will be a real struggle. Take your time and don't bend the plastic panel too sharply; if you crease the plastic it's almost impossible to remove the crease.

If the adhesive is hanging on for dear life there are a couple of things to try. First, put the entire display panel in a refrigerator for about 20 minutes; the cold can make the adhesive less sticky. If that fails, try using a hair dryer set on the lowest heat level and warm the stubborn area of the panel; don't leave the heat on any one spot too long, and don't use a paint stripping heat gun - it will produce too much heat.

Finally, if all else fails, you may have to resort to using a plastic scraper to help cut through the adhesive. The kind sold for use with auto body putty is ideal: soft enough not to damage the screening on the plastic panel, but stiff enough to cut through the adhesive. The trick is to maintain gentle, even pressure until the adhesive bonds break. Don't force it, don't rush it, and be extra careful!

Set the plastic panel in a safe place once it is free from the display panel.

Remove Speaker Grilles

The metal speaker grilles on the display panel are held in place by small nails or staples near the four corners of each speaker grille. Insert a flat putty knife between the speaker grille and the panel and gently pry up the corners of each grille; the nail or staple should pull out of the wooden panel without too much force. Be careful that you don't pry too hard and consequently bend or distort the speaker grilles! Also be careful that you don't lose the nails or staples while prying; they have a tendency to pop out.

Remove Speaker Mounting Hardware

Thread one of the longer speaker mounting screws a few turns into one of the four T-nuts around the smaller cutout in the display panel, and then tap the screw head with a hammer; the T-nut should pop right out. Repeat for the remaining T-nuts. Set the T-nuts and screw aside for re-use later.

Modify the Display Panel

We'll enlarge the smaller (right) cutout in the display panel to accommodate a 5-1/4 inch speaker, and also drill new mounting holes for the T-nuts that mount the speaker. When you're done the left and right sides of the display panel will have identical cutouts - that is, if you've measured carefully! Don't forget the old adage about measuring twice before you cut once: that's especially important when you're modifying the display panel.

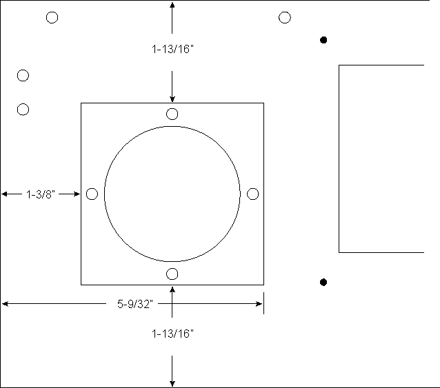
This is a diagram of the layout lines marked around the right speaker opening; the display panel is face down with the top edge toward the top of the diagram, so the cutout that will be modified is to your left as you look at the display panel:

Display panel speaker modification layout

Note: You will get the best results when you locate the mounting holes by using the measurements described below. However, you could use the "center finder" template described a few paragraphs down the page; place the template on the rear surface of the wooden display panel, line up the edges, and use an awl or a sharp nail to make marks where the four mounting holes will be drilled. If you use the template be sure to double-check the positions of the marks by measuring as described below.

Using a combination square make a mark on the rear of the wooden display panel above the existing cutout 1-13/16 inch from the top edge of the panel. Make another mark below the existing speaker cutout 1-13/16 from the bottom edge of the panel.

Using the combination square draw a horizontal line through each of the two marks.

In a similar fashion, make a mark to the left of the existing speaker cutout 1-3/8 inch from the left edge of the display panel. Make another mark to the right of the existing speaker cutout 5-9/32 inch from the left edge of the display panel. Using the combination square draw a vertical line through each of the two marks.

Your display panel should now have a square drawn on the left side. The corners of the square will be the places where the new T-nut mounting holes will be located.

Double-check your layout by placing the original 5-1/4 inch speaker on the rear of the display panel so the four speaker mounting holes are located at the four corners of the square; if your measurements were correct you should be able to see the corners of the square centered in each speaker mounting hole.

If you can't position the speaker so the four mounting holes line up with the four corners of the square, double-check the placement of the horizontal and vertical lines.

Once you've verified your measurements drill 7/32 inch diameter holes at the four corners of the square; use a brad-point drill bit so you can position the bit exactly at each corner.

Now we have to locate the center of the new cutout for the new speaker. To help I've created a "center finder" template that you can use. Click here to open the template in your browser, and then select the File -> Print menu item. Be sure the "page scaling" option is set to "none" so the template prints in the exact original size. Note: You must have Adobe® Reader® installed on your computer to view or print this file. Adobe® Reader® is available for free download on Adobe's Web Site.

(If you're unable to print the template it's pretty easy to make your own simplified version. Cut a piece of stiff cardboard 7-1/2 inches square. Draw a diagonal line from each corner; the point where the lines intersect to form an "X" is the center of the square. Using a compass draw a 2-5/8 inch circle centered on the "X". Now cut a 1/2 inch wide strip off one end of the template. When properly positioned the circle on the template will line up with the existing cutout in the panel, and the diagonal lines should line up with the new mounting holes you just drilled.)

Slide the template under the display panel and align the three outer lines with the outside edges of the display panel. When properly aligned the smaller circle should be centered on the existing cutout, the new mounting holes you just drilled should line up with the circles on the dotted diagonal lines, and the four circles outside the smaller circle should line up with the original speaker mounting holes. Use some masking tape to fasten the template to the bottom of the display panel once you're satisfied with the alignment.

If you're using a circle cutter adjust it to make a 4-3/4 inch diameter hole. Securely clamp the display panel to the table of the drill press before starting the drill press! Position the pilot bit where the two diagonal lines intersect and slowly advance the circle cutter until it has cut through the entire thickness of the board. Stop as soon as the cutout section of MDF board starts to spin around with the circle cutter bit.

Note: You may want to use a 1/4 inch brad-point drill bit to make a pilot hole before using the circle cutter; the pilot bit on the circle cutter is a standard drill bit that is a little tough to align exactly even with the center lines on the template.

If you're using a jig or sabre saw, use a compass to mark a 4-3/4 inch diameter circle on the rear of the display panel; put the compass point on the "X" on the center-finder template. The circle you drew should be exactly centered around the outside of the existing cutout; once you've verified the position of the new circle remove the template.

Drill a pilot hole for the saw blade just inside the circle, and then carefully cut along the line using the jig or sabre saw. Use a fine-toothed wood cutting blade so the cutout edges are smooth, and favor the inside edge of the line when cutting so the cutout isn't too large. Take your time and try to make the cutout as close to a perfect circle as you can.

Working from the front side of the display panel (the side with the recesses for the speaker grilles) use a Forstner bit to drill a 5/8 inch diameter recess centered on each of the 7/32 inch holes you just drilled. Don't drill too deep! The recess only needs to be as deep as the round metal "head" of the T-nut; about 1/16 inch is usually deep enough. Look at the recessed holes for the T-nuts that mount the other speaker; you'll want to match that depth. If you don't make the recesses deep enough the T-nuts will rattle and buzz against the rear side of the metal speaker grilles. If you don't have a drill press you can use a router with a flat bottom bit to make the recesses.

Note: You may need to remove the two dot matrix display mounting studs located next to the right side speaker cutout, depending on the size and orientation of your drill press table. If this is necessary simply thread one of the original dot matrix display mounting nuts onto one of the studs so the top surface of the stud and the nut are flush, and then tap the top of the nut with a hammer; the stud should come out easily. Repeat for the other stud.

Here's a picture of the completed modifications to the right side speaker cutout as viewed from the front side of the display panel:

    

Tap the original T-nuts into place in the recesses with a hammer. If you removed the display mounting studs replace those and tap them into place with a hammer.

Use flat black paint to paint the areas of exposed wood around the new speaker cutout; bare wood will be visible through the metal speaker grille. If any of the paint on the front surface of the display panel was pulled off when you removed the screened plastic panel be sure to paint the front surface of the display panel too.

Check if You Will Need Spacers

Grab one of your 5-1/4 inch replacement speakers and set it on the magnet end so the tweeter is facing upward. Carefully lay a flat metal ruler or straight edge across the outside edge of the speaker next to the tweeter. Measure the distance from the bottom of the ruler or straight edge to the top surface of the tweeter. If this distance is more than 5/16 inch you'll need to fabricate spacers for each side of the display panel.

For example, the tweeter on this speaker projects 7/16 inch - it will need a spacer:

The tweeter on this speaker projects 3/16 inch - it will not need a spacer:

If you don't need spacers skip to the section on assembling the display panel. If you do need spacers, you may be able to use the ones that are typically included in the box with the speakers; you'll probably have to do quite a bit of surgery with a saw to get them to fit. You may prefer to simply fabricate spacers instead.

Fabricate Spacers

The spacers are fabricated from 1/4 or 3/8 inch thick MDF board; the thickness used depends on the front projection of the tweeter. Measure the projection of the tweeter (see above) and subtract 1/4 inch. If the remainder is less than 1/4 inch you can use 1/4 inch thick MDF board; if the remainder is more than 1/4 inch you'll need to use 3/8 inch thick MDF board.

Here is a diagram of the spacer that we're going to fabricate:

Display panel speaker spacer block

Cut a piece of MDF board 6 inches square. A table saw is the best tool for this job; if you don't have a table saw you can use a portable circular saw. You can also have your local lumber dealer cut some pieces of MDF board to size for you. MDF board is relatively inexpensive, and it usually costs an extra quarter or fifty cents per cut for the lumber dealer to cut the MDF board to size.

Draw diagonal lines from each corner of the board to its opposite corner; the point where the two lines intersect to form an "X" is the center of the board. Make marks on each diagonal line 2-3/4 inch from the center of the square (four marks total). The screws that mount the speaker to the display panel will pass through holes at these points.

If you're using a circle cutter adjust it to cut a 4-3/4 inch diameter circle. Be sure to securely clamp the MDF board to the table of the drill press before starting the drill press! Position the pilot bit where the two diagonal lines intersect and slowly advance the circle cutter until it has cut through the entire thickness of the board. Stop as soon as the cutout section of MDF board starts to spin around with the circle cutter bit.

Note: You may want to use a 1/4 inch brad-point drill bit to make a pilot hole before using the circle cutter; the pilot bit on the circle cutter is a standard drill bit that is a little tough to align exactly even with the center lines on the template.

If you're using a jig or sabre saw, use a compass to mark a 4-3/4 inch diameter circle centered on the board. Drill a pilot hole for the saw blade just inside the circle, and then carefully cut along the line using the jig or sabre saw. Use a fine-toothed wood cutting blade so the cutout edges are smooth, and favor the inside edge of the line when cutting so the cutout isn't too large. Take your time and try to make the cutout as close to a perfect circle as you can.

Drill 3/16 inch diameter holes at the four points marked on the two diagonal lines. If you can elongate the holes so they're oval-shaped along the diagonal lines that will give you an extra bit of adjustment room.

The two J-shaped mounting hooks on the top rear of the display panel will interfere with a square spacer, so it's necessary to trim the spacer down a bit. All you really need to do is trim one side, but I trim all four sides for a symmetrical appearance. Place the original 5-1/4 speaker on top of the spacer with the speaker mounting holes lined up with the holes in the spacer. Trace around the outline of the speaker with a pencil.

Remove the speaker and check that the edges of the lines you just traced are spaced evenly around the cutout in the spacer. Use a jig or sabre saw to carefully cut just to the outside of the pencil line. Here's what the spacer should look like when you're done drilling and cutting:

Place the spacer in position on the rear of the display panel and verify that the holes you drilled line up with the T-nuts inserted in the display panel. You may want to thread the four mounting screws originally used for the left speaker (the longer ones - #8-32 x 5/8 inch) through the holes in the spacer to be sure the holes will line up properly when you mount the speaker.

After you've verified the fit of the spacer you should paint it with flat black paint so it blends with the display panel (when viewed from the front side of the panel). The completed spacer should look like this when placed in position on the display panel:

Assemble the Display Panel

You will need to purchase some #8-32 round head machine screws of the correct length for mounting the two replacement speakers. The original screws used are known as "SEMS fasteners"; they are basically a machine screw with a captive internal tooth lock washer. If you have access to a well-equipped hardware store you might be able to find SEMS fasteners in their screw department; I've also found these at Home Depot. If you can't find the SEMS fasteners you can use a regular #8-32 machine screw with a #8 internal tooth lock washer instead.

You will probably need #8-32 x 1/2 inch screws if you're not using a spacer, and #8-32 x 3/4 inch screws with a spacer, but we'll determine the proper length next.

Determine Speaker Mounting Screw Lengths

Measure the thickness of the speaker frame at any of the four mounting holes, add 1/4 inch to this measurement if you're using a spacer, and then add 1/4 inch to obtain the length of the new speaker mounting screws that you'll need. Machine screws are commonly available in 1/4 inch incremental lengths; use the shortest machine screw that does not exceed the total measurement. Depending on the particular model of speaker you use it may be necessary to add a few washers as spacers between the speaker mounting lugs and the surface of the display panel or spacer. Nylon washers are easier to use as they're not magnetic and won't be attracted to the speaker magnet; metal washers work fine but require a bit of patience to install.

Temporarily mount one speaker at either position with two screws to check that the screws do not extend beyond the surface of the T-nuts inserted into the wooden display panel when the screws are fully seated; if you're using a spacer that should be in place when you mount the speaker. If the speaker mounting screws are too long you'll need to find some shorter ones, or cut the excess length off the ones you have. Remove the speaker once you've verified the length of the mounting screws.

Replace the Speaker Grilles

Place the display panel so the recesses for the speaker grilles are facing upward. Set each metal speaker grille in position and carefully replace the small nails or staples that were originally used to mount the grilles. Check the orientation of the grille if there is a logo or printing on the front surface; no sense installing it upside-down! If you lose or misplace any of the nails or staples you can find some 1/4 inch long fine-gauge nails at your local hardware store. The original staples that were used are 22-gauge 3/8 inch wide crown 1/4 inch long; these are commonly known as upholstery staples, and are driven into place by an air-powered stapler.

Re-attach the Screened Plastic Panel

The best way to re-attach the screened plastic panel is to use 3M 467MP high performance adhesive. If you're going to be upgrading the speakers on several games you may want to buy a roll of the 2 inch or 3 inch wide material. The 467MP can be used for re-adhering under-ramp decals, miscellaneous labels, and drop target decals. It's handy stuff, and if you do a lot of pinball restoration work you'll find plenty of ways to use a roll.

You'll want to stick the 467MP on every surface of the wooden display panel that touches the screened plastic panel, including the top and bottom of the metal speaker grilles. When covering the speaker grilles don't run the adhesive beyond the speaker cutouts; check against the amount of area cut out of the screened plastic panel around each speaker grille. Try to cover sections with long strips of the 467MP to make it easier to remove the backing paper when you're ready to re-attach the plastic panel, but don't overlap any of the strips.

Rub the 467MP down firmly with your fingers or a roller; you want to get a secure bond so the adhesive stays behind when you remove the backing tape. Once all the lengths of 467MP are in place let the display panel set for several hours, or overnight, before you try to remove the backing tape from the 467MP. You may wish to lay the panel face down on a towel and add some weights to the back of the panel to help adhere the 467MP.

Restoration tip: While you're waiting for the 467MP to set it's a good time to polish the front surface of the screened plastic panel and thoroughly clean the "window" in the plastic from the back side to remove any gunk.

Carefully remove the backing tape from all of the 467MP on the wooden display panel. Double-check the orientation of the screened plastic panel to be sure you install it right side up! Slowly lower the plastic panel onto the front of the wooden display panel, taking extreme care to line up the edges of the plastic and wooden panels.

Replace Panel Mounting Hardware

Replace the plastic U-channel and clamps that you removed from the top of the display panel. The U-channel is mounted to the wooden display panel with four #8-32 x 3/8 inch SEMS fasteners; small cable clamps are used at the two mounting positions closest to the center of the panel.

Replace the J-shaped hooks used to mount the top of the display panel to the rails inside the back box; they're held in place by a pair of #8-32 flat head machine screws. The rounded part of the hook should be closest to the plastic U-channel at the top edge of the display panel.

Mount Replacement Speakers

When you mount the replacement speakers the terminal lugs should be positioned toward the top edge of the display panel (the top is where the U-channel is mounted). Don't use excessive force when tightening the replacement speaker mounting screws. If the speaker has mounting lugs that extend from the sides of the speaker basket be sure to put some spacers (#8 flat washers work fine) between the lugs and the spacer or display panel; this way you won't distort the speaker basket when tightening the speaker mounting screws. Nylon washers are easier to use as they're not magnetic and won't be attracted to the speaker magnet; metal washers work fine but require a bit of patience to install.

The left speaker should have a green-yellow ground wire fastened under the upper mounting screw closest to the dot matrix display.

Replace Dot Matrix Display and Feature Lamp Board

Replace the four black plastic spacers on the dot matrix display mounting studs, and then replace the display. The connectors on the display should be oriented toward the bottom edge of the display panel (facing away from the plastic U-channel on the top edge of the panel). Replace the insulating paper, put a flat washer on each mounting stud, and then replace the four nuts that secure the display to the panel. Don't use excessive force when tightening the display mounting nuts.

If the game had a feature lamp board mounted to the rear of the display panel (such as Addams Family or Indiana Jones) that should be re-installed at this point.

We're done with the display panel for now; we'll wire it up after we're done with the cabinet speaker.

NEXT: cabinet speaker replacement

HOME: WPC speaker replacement

Copyright © 2005 by Joseph A. Dziedzic. All rights reserved.